本町の中心で一番ちょうどいい価格の1→10人に最適なシェアオフィス
本町

RENEWAL!

現 伊藤佑クリエイトセンターは
2024.
「OFFiTs本町」にリニューアル

〒541-0056 
大阪府大阪市中央区久太郎町3-1-6 伊藤佑ビル大阪本町5F〜8F GoogleMapで見る

施設紹介ABOUT THE FACILITY

施設紹介
1〜10名の拠点となる
プライベートオフィス
気分に合わせて利用できる
コワーキングスペース

働き方それぞれに寄り添う
現実的で理想的な拠点づくり

2024年春、本町の『伊藤佑クリエイトセンター』が、新シェアオフィスブランド『OFFiTs本町』として生まれ変わります。定員数1名〜20名の大小様々な「プライベートオフィス」、自然光をとり入れた明るく開放的な「コワーキングスペース」だけでなく、新たに「屋上テラス」を開設。気分に合わせて利用できるエリアがさらに広がり、働く人思いのワークスペースはさらに進化します。手間とコストを抑えた、現実的で理想的な「拠点づくり」に、OFFiTsならではのサービスを1〜10までご活用ください。

仕事場の「欲しい」も
「嬉しい」もぜんぶ
ALL IN ONE

  • 本町駅&堺筋本町駅〜徒歩3分
  • シェアオフィス365日24時間利用可能
  • 会議室利用可
  • 高セキュリティー電気錠
  • Wi-Fi完備
  • VLAN高速ネット回線
  • 家具付きオフィスあり
  • 敷金/礼金なし 事務手数料1ヶ月分のみ
  • 電話番号取得OK
  • 複合機利用可 ※コピー・プリント代は有料
  • FREEドリンク
  • 挽きたてドリップコーヒー
  • フォンブースあり
  • 喫煙室あり
  • 法人住所登記OK
  • 月額利用コワーキング
  • 光熱費込み
  • トランクルーム併設
  • 有料ロッカーあり
  • ラウンジ清掃毎日実施 ※土・日・祝除く
詳しい情報は各施設の資料をダウンロード 資料ダウンロード 資料DLはこちら
仕事に「馴染む」は生活を「豊か」にする

仕事に「馴染む」は
生活を「豊か」にする

  • FIT 1働く“ヒト”が集まる
    オフィス街の中心に立地
  • FIT 2身の丈に合った“拠点づくり”
    相応しい規模と価格
  • FIT 3無理なく無駄なく
    ビジネスをスタートアップ
  • FIT 4働き方に制限をかけない
    「自由自在」な職場空間
  • FIT 5居心地のいい
    魅力的な共用「ラウンジ」スペース
  • FIT 6通常のオフィスでは体験できない
    充実のサービス
  • FIT 7予約・決済などをDX化した
    利用者向け「マイページ」
詳しく見る

こんな方にFITFIT FOR THESE PEOPLE

人数や規模に合わせて
最適にフィットする
“ちょうどいい”
シェアオフィス

  • CASE 11人〜3人での起業
    1人〜3人での起業

    個人事業主・少人数での
    スタートアップに“ちょうどいい”
    シェアオフィスという選択肢

    個人・法人を問わず、起業時にかかる手間とコストは多方面にわたります。法人登記や最初の拠点づくりをスムーズかつスマートに行うなら、余計な手間とコストのかからないシェアオフィスがぴったりの選択肢になるはず。入居初日からすぐのビジネス展開をサポートします。

  • CASE 24人〜6人のチーム
    4人〜6人のチーム

    増員・事業拡大のフェーズに“ちょうどいい”
    社員が集まる職場づくり

    従業員の増加や事業拡大に合わせて、もう一回り大きなスペース、社員がゆったり過ごせるスペースを手に入れたいとお考えなら、引っ越しの手間とコストを抑えることができるシェアオフィスがおすすめ。プライベートオフィスだけでなく、施設内の会議室や共用ラウンジも上手に活用することで、チームの一体感と社員の満足感の向上を叶えます。

  • CASE 37人〜10人の企業
    7人〜10人の企業

    なにわの支店・支社の組織づくりに“ちょうどいい”
    コンパクトな拠点構築

    西日本の中心都市である大阪に、ビジネス拡大の拠点として支店・支社を構えるなら、初期費用を抑えてスムーズに組織体制を整えられるシェアオフィスの利用がおすすめ。顧客や取引先との打ち合わせ、従業員の通勤など、交通の便が良いオフィス街に立地しており、新たなビジネスチャンスの拡大はもちろん、合間時間や出退勤時の生活そのものの利便性も向上します。

料金プランPRICE

低コスト・低リスクで
ワークプレイスを“確保”する
OFFiTsの料金プラン

賃貸料+ネット/電気代/家具代など
必要なランニングコスト込みの月額利用料金

  • 8Fラウンジスペース

    中庭の緑と自然光がリラックス効果を高めてくれる共用ラウンジ。挽きたてコーヒーも楽しめるドリンクコーナーなどを設け、思い思いの過ごし方に対応。

    • コーヒーメーカー
    • 給茶器
    • 電子レンジ
    • 喫煙室
    • 共用スペース
    • 屋上テラスも利用可能
  • 7Fシェアオフィス/複合機・文具コーナー

    利用人数に合わせて契約できるプライベートオフィスが多数並ぶフロア。複合機や文具コーナーもあり、働きやすいワークスペースを実現。

    • プライベートオフィス多数
    • OAコーナー
    • 文具貸し出し
    • フォンブース2室
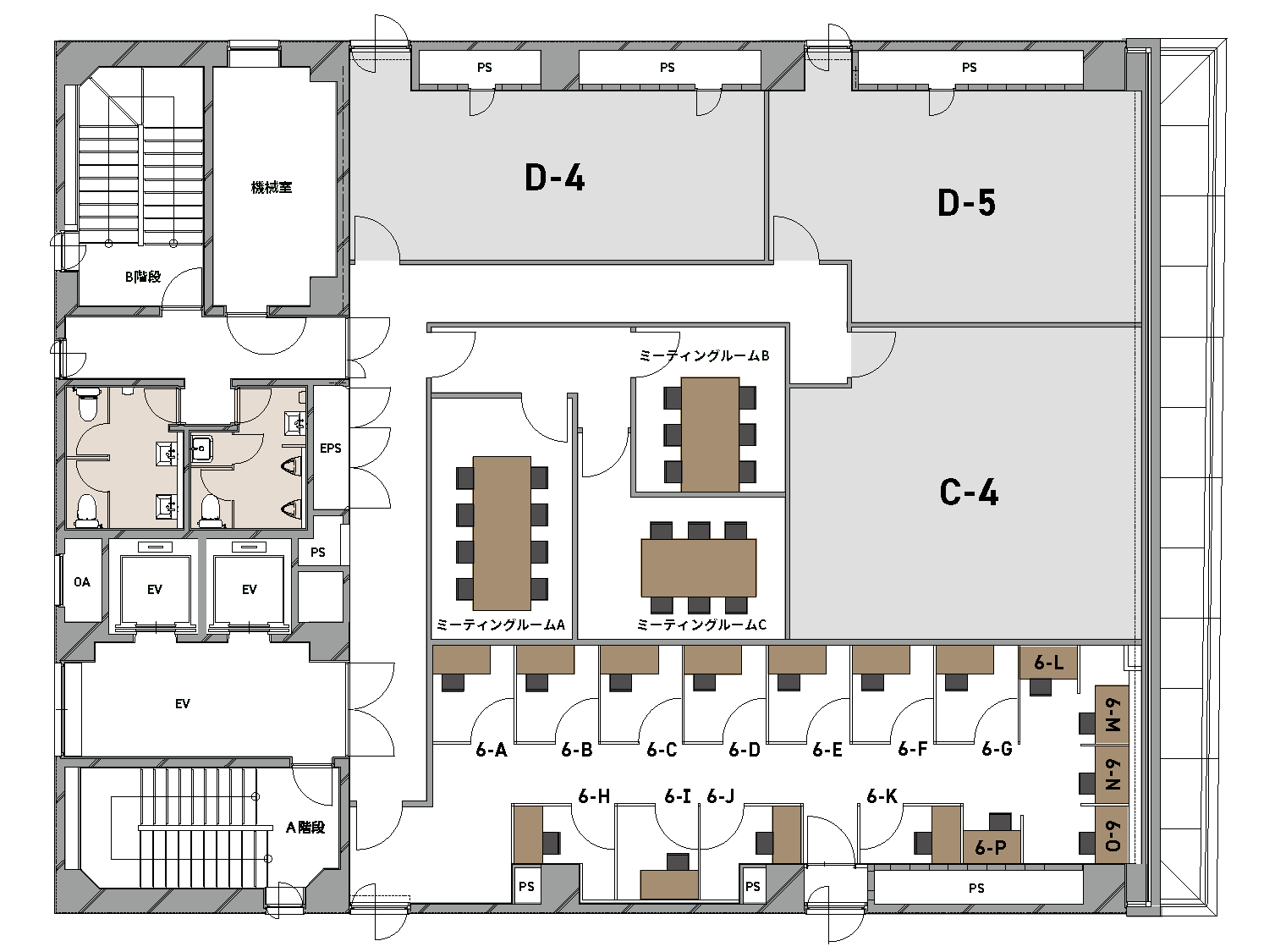
  • 6Fミーティングルーム/シェアオフィス

    モニターや白板も利用できるミーティングルームは、入居者が予約制で利用可能。1名様向けの小型オフィスを中心としたフロア。

    • 1名用個室エリア
    • ミーティングルーム3室
    • 大型プライベートオフィス2室
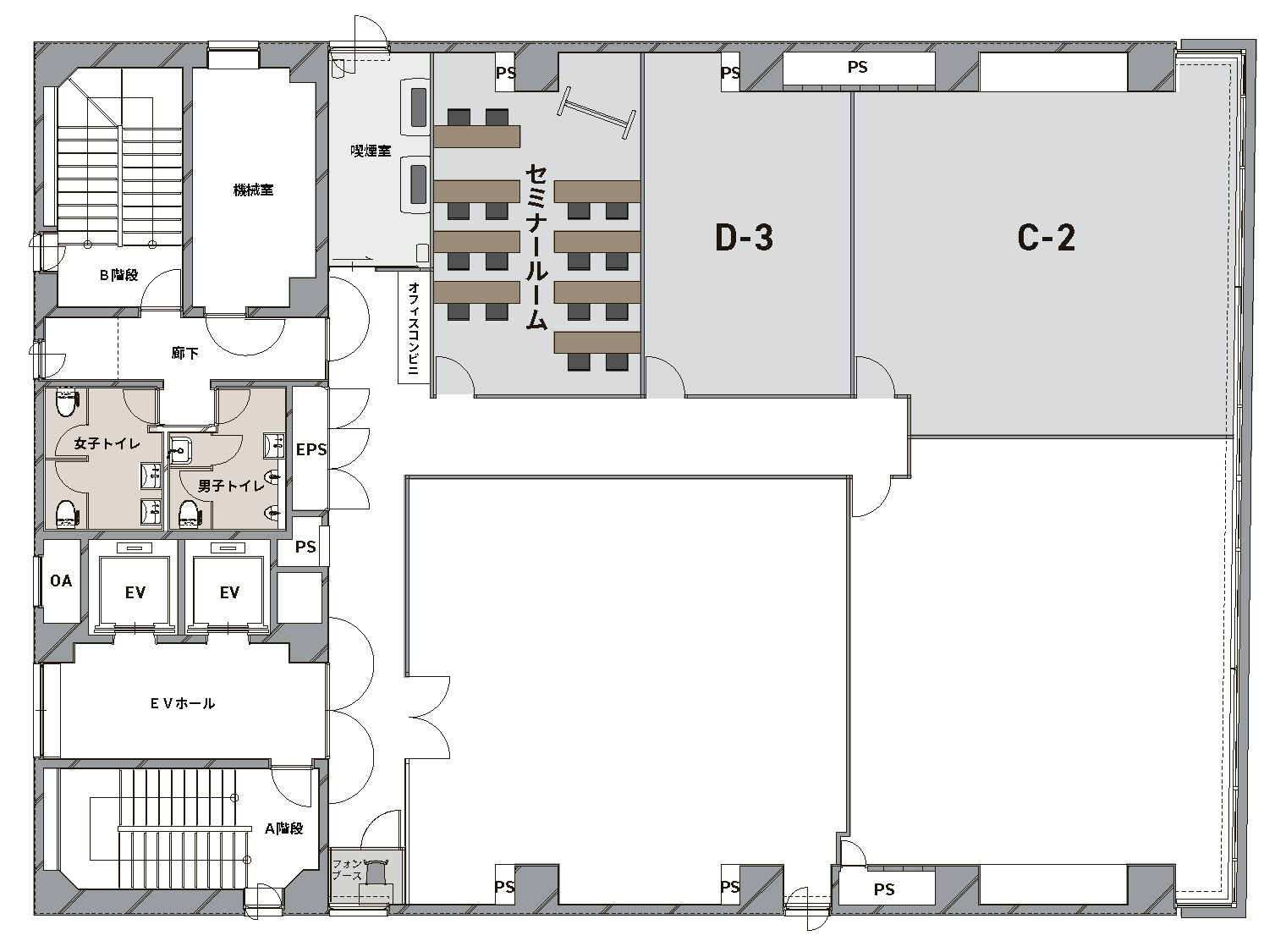
  • 5Fセミナールーム/シェアオフィス

    プロジェクターや白板を完備したセミナールーム(最大21名)は、入居者のみ予約制で利用可能。8名様以上の中~大型オフィスを中心としたフロアには、オフィスコンビニも設置。

    • セミナールーム
    • 大型プライベートオフィス
    • オフィスコンビニ
    • 喫煙室
【シェアオフィス月額】
家具あり(オフィス家具を標準配置しています)
  • 1名席¥29,000〜
  • 1名個室¥39,000〜
  • 2名個室¥91,000〜
  • 3名個室¥134,000〜
  • 4名個室¥180,000〜
  • 5名個室¥220,000
  • 6名個室¥277,000
【シェアオフィス月額】
家具なし(家具は含まれません)
  • 28㎡(D-3)¥300,000
  • 31㎡(D-4)¥312,000
  • 36㎡(D-5)¥370,000
  • 47㎡(C-4)¥450,000
  • 59㎡(C-2)¥550,000
【コワーキング月額】
  • 1アカウント¥15,000
【有料サービス】
  • 登記・住所表記・メール/宅配ボックス・社名表示板¥5,000 / 月
  • 電話番号利用・
    ビジネスフォン貸与
    • ※通話料は実費負担
    • ※1チャネル追加は5,000円
    ¥10,000 / 月
  • 利用者人数追加利用料¥5,000 / 月
  • 8階有料ロッカー(小)¥3,000/ 月
    (大)¥5,000/ 月
  • コピー・プリンター代(モノクロ)¥5/ 枚
    (カラー)¥15/ 枚
  • ミーティングルーム利用¥1,000 / 時間
    ※ 最低15分〜利用可能
  • セミナールーム利用¥2,000/ 時間
事務手数料
利用料金の1カ月分
  • 契約事務手数料
  • 契約オフィススペース登録人数分の入退館カード発行費用
  • 退去時の鍵交換費用

※記載の料金は全て税抜価格です。

OFFiTs本町の内観

ご利用の流れFLOW

初期費用を抑えて
ストレスフリーのかんたん契約

  • STEP 1
    見学

    OFFiTs各施設の契約は、原則として事前見学をお願いしております。Webサイトの「見学予約フォーム」より見学希望のオフィスを選択し、ご希望日時をお知らせください。
    見学の所要時間は約30分です。ご利用条件や料金・サービスなども担当スタッフがご説明いたします。ご見学後のお見積り作成、お部屋のお取り置きも可能です。

  • STEP 2
    申込・審査

    必要書類をご準備の上、Webサイトの「契約申込みフォーム」より、必要事項のご記入とご利用規約をご確認いただき、入居のお申し込み手続きを進めてください。
    お申し込み内容の確認後、審査に入ります。最短1営業日〜最大3営業日までに審査結果をお知らせいたします。

  • STEP 3
    契約

    審査可決後、初期費用として、事務手数料・初月の月額費用をお支払いいただきます。ご入金完了後、契約締結の手続き並びに「会員専用システム(マイページ)」についてのご案内をいたします。

  • STEP 4
    利用開始

    契約時の利用開始日より、ご入居いただけます。ご利用初日は、担当スタッフが立ち会い、施設利用に関する説明をさせていただきます。
    通常の賃貸オフィスとは異なり、インターネットの開設や複合機の準備などは不要で、入居者が自由に使える文具なども揃っています。それらの設備・備品をはじめ、入居初日から共用ラウンジスペースの利用も可能です。

見学予約はこちらTOUR RESERVATION

  • 2024年3月OPENの真新しいシェアオフィス 淀屋橋
見学予約フォームへ
まずは
相談
資料ダウンロード 資料DL お電話でのお問い合わせ